top of page

Create Your First Project
Start adding your projects to your portfolio. Click on "Manage Projects" to get started
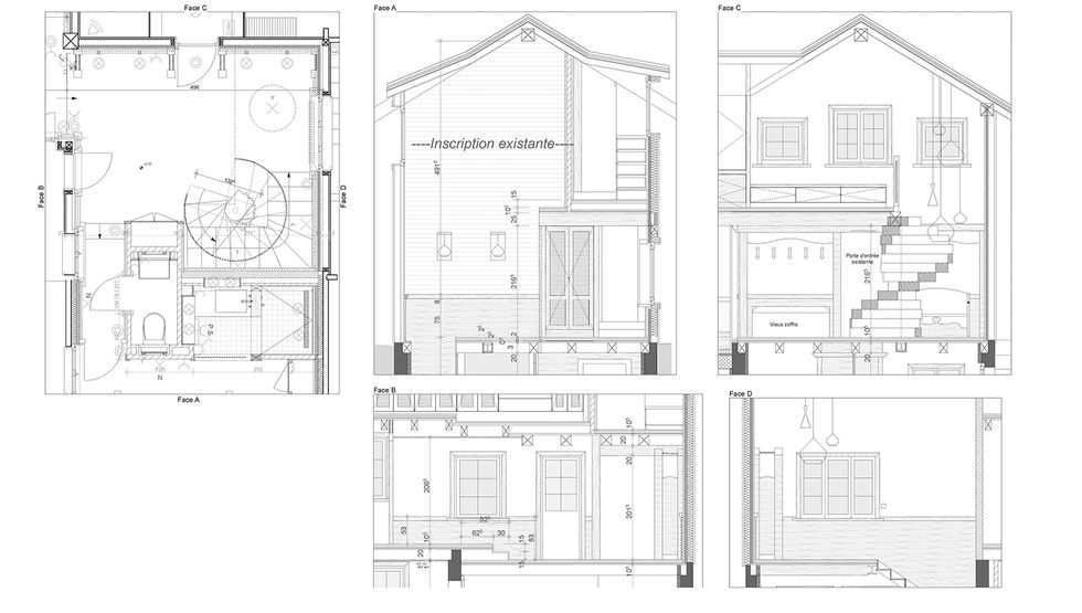
Chalet de prestige
Type de projet
Habitation
Date
2010
Emplacement
Suisse
Chalet dans un cadre idyllique, fait dans la tradition et l'élegance.




















bottom of page